CAD 块统计不用愁!一键操作轻松搞定
CAD 块统计在 CAD 操作中是一个非常高频的需求。无论是统计不同型号的门窗数量,还是清点房间内的喷头布置……这些使用 CAD 看图王都能轻松搞定!
使用前提:需要注意的是,块统计功能仅适用于包含图块的图纸。如果图纸已被分解,将无法直接统计。建议使用原始图纸进行操作哦~
(一)图文版详细教程---电脑版
1、启动【浩辰 CAD 看图王】手机版软件,打开图纸后点击工具箱“块统计”功能;
 2、放大图纸(作用是为了更准确的选中图块),选择要统计的图块 ,在弹出的界面里面设置统计范围(全图、窗口等);
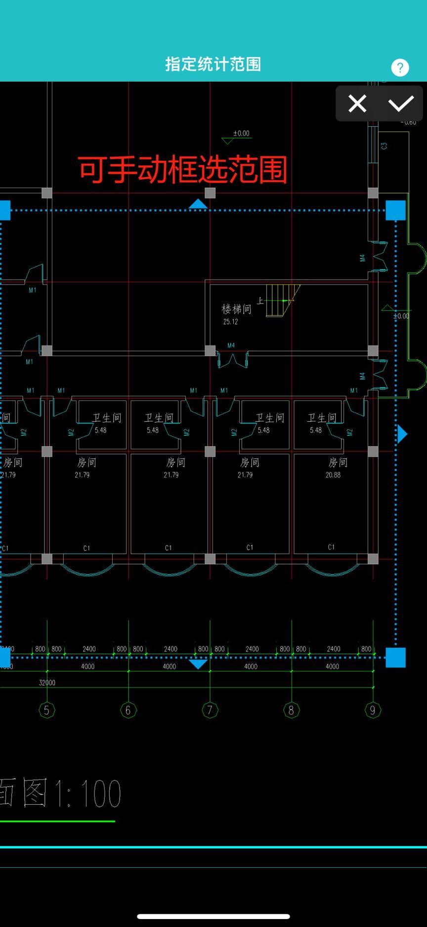
 3、以窗口统计为例,指定统计范围;
 4、返回图纸任意拖动窗口范围,再次块数量统计完成啦!
 (二)图文版详细教程---电脑版
目前浩辰 CAD 看图王电脑端为了方便用户随时随地的统计图块和图形,将「图形统计」和「块统计」两项功能合二为一,统称为「图形统计」啦!
1、首先,打开需要进行操作的图纸,点击上方菜单栏“览图测量”中的“图形统计”功能(这里注意,块统计功能挪位置啦,不在以前的扩展工具栏里啦),然后根据系统提示选择需要统计的块:
 2、当我们选中相应的图块的时候,鼠标右击一下会调出“图形统计”对话框,点击【查找】按钮,图纸中则会标记出图块数量和位置,小红点按钮则代表统计的图块位置:
 






    
评论